Provisionsfrei Büro-/Lagerflächen in Heerdt

Objekt-Nr. 2047 – Büro/Praxis zur Miete in 40549 Düsseldorf - Heerdt

Ansprechpartner

Marc Negwer

Telefon: 0211-6509130
Telefax: 0211-65091314

info@negwer-oelschlaeger.de


  • Miete pro m²
    6,75 €
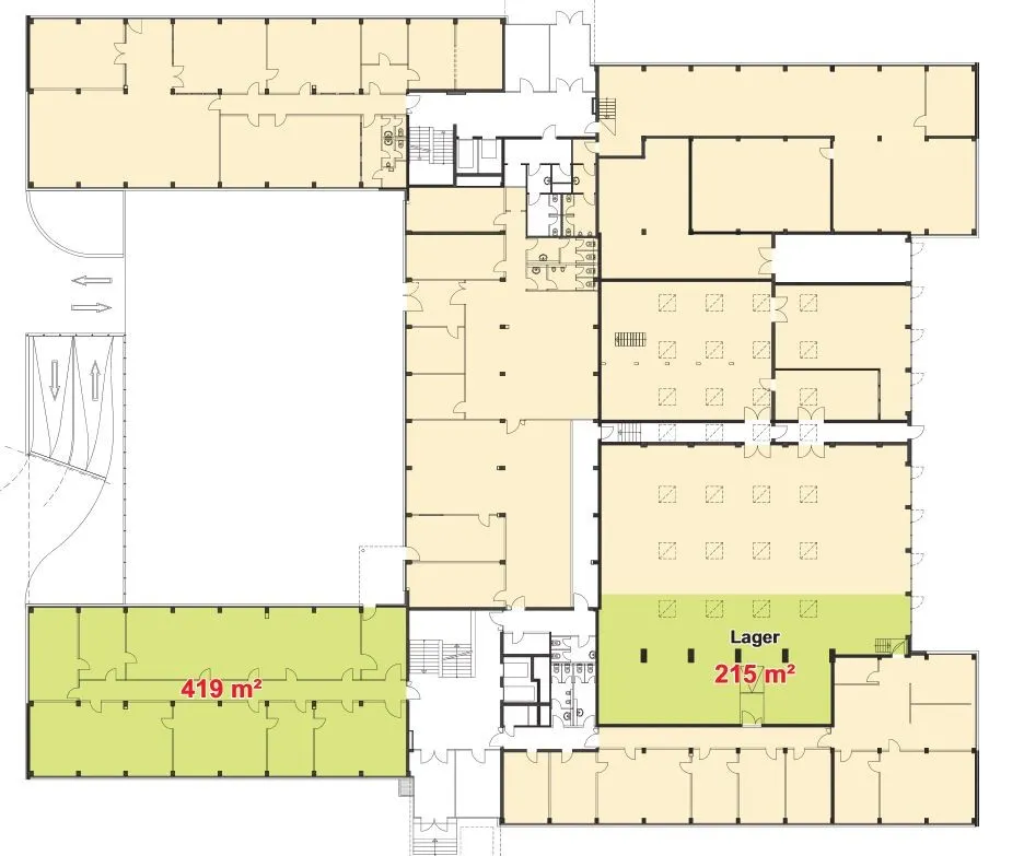
  • Nutzfläche
    ca. 1.988 m²
  • Gesamtfläche
    ca. 1.988 m²
  • Lagerfläche
    ca. 1.679 m²
  • Bürofläche
    ca. 28 m²

Sonstiges

Heizenergieverbrauchswert: 135 kWh/(m²*a)
Stromverbrauchskennwert: 37 kWh/(m²*a)
Energieausweis: Verbrauchsausweis

Ausstattung

Büro:
- großzügiges Foyer mit Sitzmöglichkeit
- Dachgarten und Rosengarten
- Bodenkabelkanäle zur Unterbringung von Strom-/Telefon- und EDV-Verkabelung
- öffenbare Fenster mit Dreh-/Kippbeschlägen
- Außenliegender Sonnenschutz
- Teppichboden/Kunststoffboden

Lager:
- Ebenerdige Zufahrt über Sektional/Rolltore
- beheizt
- teilweise mit Belichtung

Lagebeschreibung

Das Bürogebäude liegt im linksrheinischen Gewerbegebiet Düsseldorf-Heerdt. Dieser Standort zeichnet sich durch eine gute Verkehrsanbindung aus. Die Zufahrt zur A52 (Düsseldorf/Mönchengladbach) ist in wenige Minuten zu erreichen.
Diverse Bus- und Bahnlinien verkehren an der nahegelegenen Heerdter Landstraße. Einkaufsmöglichkeiten zur Deckung des täglichen Bedarfs stehen unmittelbar gegenüber dem Objekt zur Verfügung.

Kosten

Miete pro m² 6,75 €

Ausstattung

Nutzfläche ca. 1.988 m²
Gesamtfläche ca. 1.988 m²
Lagerfläche ca. 1.679 m²
Bürofläche ca. 28 m²
verfügbar ab sofort

Energieverbrauchsausweis

Endenergieverbrauch-Strom 37 kWh/(m²*a)
Endenergieverbrauch-Wärme 135 kWh/(m²*a)
Gültig bis

0200400+

Mieterprovision zzgl. MwSt

0 Monatsmieten


Objekt-Nr. 2047 – Büro/Praxis zur Miete in 40549 Düsseldorf - Heerdt

Zurück zu den Immobilienangeboten

Bewerten Sie Negwer & Oelschläger GmbH Immobilien