Provisionsfrei Moderne Büroflächen am Düsseldorfer Flughafen

Objekt-Nr. 2106 – Büro/Praxis zur Miete in 40468 Düsseldorf - Lichtenbroich

Ansprechpartner

Marc Negwer

Telefon: 0211-6509130
Telefax: 0211-65091314

info@negwer-oelschlaeger.de


  • Miete pro m²
    15,50 €
  • Nebenkosten
    2,50 €
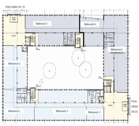
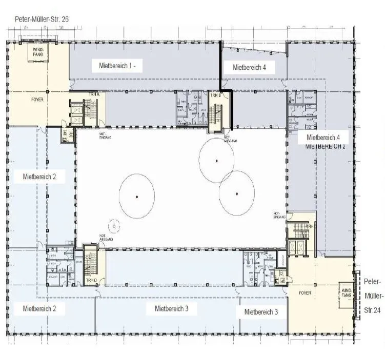
  • Gesamtfläche
    ca. 1.150 m²
  • Bürofläche
    ca. 648 m²
  • Büroteilfläche
    502

Ausstattung

- Natursteinfoyer
- Außenliegender elektrisch betriebener Sonnenschutz
- Sandsteinfassade
- Flexibles Trennwandsystem
- Standleuchten für indirekte Beleuchtung
- D/H WC
- Teeküche

Lagebeschreibung

Das moderne erst 2010 fertiggestellte Bürogebäude liegt im sogenannten Flughafen Areal. Vom Gebäude aus erreicht man den Düsseldorfer Flughafen in wenigen Minuten zu Fuß. Auch mit dem PKW ist dieser Standort gut angebunden. Die Zufahrt zur A44 ist nur wenige 100 Meter entfernt. Beste Verkehrsanbindung an die Autobahnen A52 und die A57 sowie den öffentlichen Nahverkehr.

Kosten

Miete pro m² 15,50 €
Nebenkosten 2,50 €

Ausstattung

Gesamtfläche ca. 1.150 m²
Bürofläche ca. 648 m²
Büroteilfläche 502
Baujahr 2010
Befeuerungsart Gas
verfügbar ab sofort

Energiebedarfsausweis

Endenergiebedarf 198,70 kWh/(m²*a)
Endenergiebedarf-Strom 6,50 kWh/(m²*a)
Endenergiebedarf-Wärme 117,20 kWh/(m²*a)
Befeuerungsart Gas
Baujahr (Energieausweis) 19.07.2010
Gültig bis 18.07.2020

0200400+

Mieterprovision zzgl. MwSt

0 Monatsmieten


Objekt-Nr. 2106 – Büro/Praxis zur Miete in 40468 Düsseldorf - Lichtenbroich

Zurück zu den Immobilienangeboten

Bewerten Sie Negwer & Oelschläger GmbH Immobilien