Provisionsfrei Moderne Büroflächen im Hafen

Objekt-Nr. 2121 – Büro/Praxis zur Miete in 40221 Düsseldorf - Hafen

Ansprechpartner

Marc Negwer

Telefon: 0211-6509130
Telefax: 0211-65091314

info@negwer-oelschlaeger.de


  • Miete pro m²
    17,50 €
  • Gesamtfläche
    ca. 3.802 m²
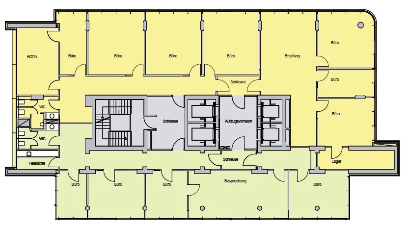
  • Bürofläche
    ca. 718 m²
  • Büroteilfläche
    246

Ausstattung

- Moderne Glas-/Betonfassade
- Bodentiefe Fenster
- Unterstützende Kühlung
- Doppelboden
- BAP-Pendelleuchten
- Sonnenschutz
- Öffenbare Fenster
- D/H WC, Teeküche

Lagebeschreibung

Das Dock2 ist ein modernes Büro-Hochhaus im Düsseldorfer Hafen. Ein für Unternehmen aus den Bereichen Dienstleistung/Beratung/Mode und Werbung äußerst beliebter Standort. Verkehrstechnisch ist der Standort gut angebunden und die Nähe zur Düsseldorfer Innenstadt erhöht die Attraktivität des Standortes. Der nahe gelegene Rheinufertunnel ermöglicht kurze Fahrzeiten in die südlichen und nördlichen Stadtgebiete. Durch die bodentiefen Fenster hat man einen wunderschönen Blick auf den Hafen und die Düsseldorfer Innenstadt.

Kosten

Miete pro m² 17,50 €

Ausstattung

Gesamtfläche ca. 3.802 m²
Bürofläche ca. 718 m²
Büroteilfläche 246
Baujahr 2002
Befeuerungsart Fernwärme
verfügbar ab sofort

Energieverbrauchsausweis

Endenergieverbrauch-Strom 23 kWh/(m²*a)
Endenergieverbrauch-Wärme 78 kWh/(m²*a)
Energieverbrauch inkl. Warmwasser
Befeuerungsart Fernwärme
Baujahr (Energieausweis) 2002
Gültig bis 30.06.2020
Energieausweis Ausstellungsdatum 2010-06-30

0200400+

Mieterprovision zzgl. MwSt

0 Monatsmieten


Objekt-Nr. 2121 – Büro/Praxis zur Miete in 40221 Düsseldorf - Hafen

Zurück zu den Immobilienangeboten

Bewerten Sie Negwer & Oelschläger GmbH Immobilien